Ngôi nhà - thế giới sống chậm giữa thiên nhiên
Sống giản dị, yêu cây xanh và những khoảng sân vườn, gia chủ chọn ở nhà như một cách tận hưởng trọn vẹn cuộc sống. Ngôi nhà được tổ chức theo trục dài, kết nối hài hòa giữa không gian ở, sinh hoạt và hồ bơi thư giãn, nơi ánh sáng, gió trời và vật liệu tự nhiên cùng hiện diện, tạo nên một nhịp sống nhẹ nhàng, bình yên và gần gũi với thiên nhiên.
Dự án được xây dựng cho người nước ngoài, quen lối sống giản dị, thích cây xanh và những khoảng sân vườn. Họ thích ở nhà và tận hưởng cuộc sống hơn ra bên ngoài, căn nhà gần như là cuộc sống của họ gắn liền trong ngày, ngoài các chức năng nhu cầu sử dụng họ cũng muốn có thêm một khu vực hồ bơi để thư giãn và bơi lội trong ngày.



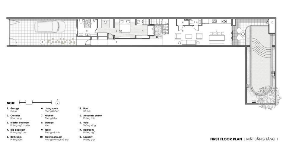
Căn nhà đáp ứng các yếu tố về không gian trên, hình thành không gian theo trục chiều dài của căn nhà. Việc tổ chức cấu trúc chức năng trên từng không gian với các khối chức năng sau, ở tầng trệt, khoảng sân kết hợp gara để xe, khối phòng ngủ chính, trục hành lang, lõi cầu thang, kế đến là phòng khách, khu vực bếp sau cùng là khu hồ bơi.

Ngôi nhà được thiết kế các khối chức năng theo chiều dài khối nhà
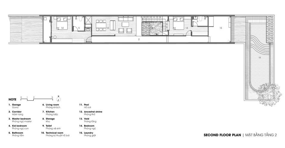
Tầng một dành cho khối phòng ngủ trước và sau, khu vực phòng thờ và giặt phơi ở sau cùng
Không gian phòng ngủ được bố trí ấm cúng
Lối vào chính ngôi nhà được dẫn dắt từ trục hành lang dài, đi vào bên trong mở ra một không gian lớn hơn cho khu vực sinh hoạt khách và bếp.

Lối vào được dẫn dắt từ trục hành lang dài với khoảng đệm được lấy sáng ở giếng trời
Không gian này được khoảng đệm lấy sáng ở vị trí giếng trời cầu thang mở rộng và khoảng kết thúc sau cùng nhà là hồ bơi, tạo sự thông thoáng cho căn nhà về việc đối lưu khí trời từ trục hành lang xuyên suốt ở tầng trệt và tầng một. Khu vực mặt nước hồ bơi cũng làm giảm đi lượng nắng nóng hắt vào nhà.

Điểm cuối ngôi nhà là khu vực hồ bơi, nơi gia chủ tận hưởng những khoảng thời gian thư giãn tại nhà
Vật liệu chính sử dụng cho công trình là chất liệu như đá tự nhiên, gỗ, mái ngói, các chất liệu thiên về tự nhiên chúng có sự liên kết gần gũi với cây xanh và môi trường tự nhiên.

Vật liệu chính sử dụng chủ yếu là đá, gỗ tự nhiên mang đến cảm giác gần gũi thiên nhiên