Tái sử dụng hạ tầng giao thông thành không gian sáng tạo
Sự cộng hưởng giữa bùng nổ dân số, phát triển kinh tế và đô thị hóa đang thúc đẩy mạnh mẽ sự lưu thông của con người và hàng hóa, kéo theo những bước chuyển mình của hệ thống giao thông đô thị. Trong bối cảnh công nghệ vận tải không ngừng thay đổi, việc tái thiết và chuyển đổi công năng các toa tàu, cabin máy bay hay hạ tầng cũ đang trở thành 'mảnh đất màu mỡ' cho các ý tưởng đột phá. Đó là điểm chạm nơi vật liệu, công nghệ và thiết kế gặp gỡ, cùng hướng tới sứ mệnh: hồi sinh những cấu trúc bị bỏ quên và thổi vào chúng một sức sống mới.
Các đô thị đóng vai trò là hạt nhân của hoạt động kinh tế và phát triển xã hội trên mọi quy mô, từ khu vực, quốc gia đến toàn cầu. Trong đó, tàu hỏa, tàu điện ngầm, xe buýt, máy bay hay tàu thủy... chính là những yếu tố định hình nên nhịp sống thường nhật của đô thị.
Tuy nhiên, theo Báo cáo Mục tiêu Phát triển Bền vững 2023, chỉ 51,6% dân số đô thị trên thế giới tiếp cận thuận lợi với giao thông công cộng. Con số này phản ánh sự chênh lệch lớn về chất lượng và khả năng tiếp cận hạ tầng giao thông giữa các khu vực, các quốc gia và ngay trong nội tại mỗi thành phố.
Bất kể vận hành theo hệ thống, cơ chế hay phương thức lưu thông nào, giao thông vận tải luôn là một mạng lưới phức hợp với sự tham gia của nhiều bên liên quan đa ngành. Hưởng ứng tư duy 'hạn chế xây mới' (building less), nhiều kiến trúc sư và nhà quy hoạch đô thị hiện đang tập trung tái tư duy và chuyển đổi các cấu trúc hiện hữu, thứ vốn thường bị lãng quên hoặc lỗi thời thành những không gian mang mục đích mới với khả năng thích ứng linh hoạt.

Mạng lưới giao thông huyết mạch đan xen với các không gian xanh tại Buenos Aires, Argentina
Trong khi ngành công nghiệp vận tải không ngừng nỗ lực giảm thiểu trọng lượng của thiết bị, máy móc và hạ tầng để tối ưu hóa hiệu suất, họ vẫn phải đảm bảo tính cốt lõi của vật liệu về chất lượng, cường độ chịu lực và độ bền nhằm tạo thuận lợi cho công tác bảo trì và đáp ứng các tiêu chuẩn an toàn.
Việc bảo tồn các cấu trúc và thiết bị nhất định mang lại những ý nghĩa mới cho 'ký ức tập thể' (collective memory), tạo nên sự giao thoa giữa quá khứ với nhu cầu và ngôn ngữ vật liệu đương đại.
Hãy nhìn cách văn phòng SO? Architecture and Ideas đã giữ lại các thành phần kết cấu mái nguyên bản và màu gạch hồ bơi tại dự án Hội trường Công cộng của Cơ quan Quy hoạch Istanbul. Câu hỏi đặt ra là: Tại sao hạ tầng giao thông lại không thể được cải tạo theo hướng tái cấu trúc không gian, trong khi vẫn gìn giữ trọn vẹn vật liệu và cá tính nguyên bản của chúng? Vậy, ý nghĩa thực sự của việc chuyển đổi công năng một công trình giao thông là gì?


Hội trường Công cộng của Cơ quan Quy hoạch Istanbul năm 2022 tại Thổ Nhĩ Kỳ - được thiết kế bởi văn phòng kiến trúc SO? Architecture and Ideas
Đa Công Năng: Sự Pha Trộn Trong Tái Thiết Hạ Tầng
Với nỗ lực thúc đẩy tương tác cộng đồng và gắn kết xã hội, mô hình đô thị hiện đại đang đề cao tư duy phát triển phức hợp (mixed-use) nhờ những lợi ích vượt trội về kinh tế, xã hội và hạ tầng.
Đặt trong bối cảnh chuyển đổi công năng các cấu trúc đặc thù như toa tàu, thân máy bay hay cabin tàu thủy..., việc để nhiều mục đích sử dụng cùng tồn tại đòi hỏi sự cân nhắc thấu đáo từ các cấp độ tiếp cận khác nhau cho đến việc bố trí tiện ích phù hợp. Sự tương tác năng động giữa các hoạt động này đòi hỏi kiến trúc sư phải thấu hiểu nhu cầu của người dùng tương lai, nhưng soi chiếu qua một lăng kính tôn trọng quá khứ vận hành của chính cấu trúc đó.


Sơ đồ phân khu chức năng (Layout) của dự án Coach Airways Store & Café. Bản vẽ thể hiện cách bố trí dây chuyền công năng dọc theo trục dọc của thân máy bay
Được định vị như những điểm nhấn đô thị và thường đóng vai trò hạt nhân trong các chiến lược chuyển đổi cấp khu vực điển hình như dự án Trung tâm Đa phương thức và Văn phòng tại Nantes, việc tích hợp hạ tầng giao thông với không gian làm việc, giải trí và thương mại đang hỗ trợ đắc lực cho sự phát triển và tiến hóa không ngừng của các thành phố.
Tuy nhiên, việc chuyển đổi công năng các cấu trúc này tương tự như việc biến nhà thờ thành nhà ở hay cải tạo nhà máy thành trung tâm văn hóa, cũng khơi mào những thảo luận về bảo tồn di sản, về vai trò lịch sử của hạ tầng trong lòng đô thị, và giá trị của 'tái sử dụng thích ứng' trong bối cảnh hiện nay.
Đơn cử như thiết kế của Coach Airways Store and Café tại Malaysiam, từ một chiếc máy bay bị bỏ hoang, dự án đã lột xác thành bốn khoang trải nghiệm độc đáo. Bằng cách đan xen không gian thương mại với dịch vụ cà phê, công trình nỗ lực tìm kiếm sự cân bằng tinh tế giữa cái cũ và cái mới.
Đa Vật Liệu: Sự Tích Hợp Của Đặc Tính, Chất Cảm Và Màu Sắc Trong Nội Thất
Mặc dù sự ra đời của bánh xe được coi là một trong những cột mốc công nghệ quan trọng nhất lịch sử, nhưng chính chuỗi cải tiến và đổi mới sau đó mới là yếu tố then chốt giúp nâng cao hiệu suất vận tải, tải trọng và tốc độ theo thời gian. Bắt nguồn từ Cách mạng Công nghiệp, thép trở thành động lực chuyển mình của ngành giao thông vận tải trên cả đường bộ, đường thủy và hàng không.
Từ những đầu máy hơi nước sơ khai đến các loại máy bay tân tiến nhất, chính cường độ chịu lực, độ bền và tính linh hoạt đã biến thép thành vật liệu lý tưởng để chế tạo phương tiện, cơ sở hạ tầng và máy móc. Nó thay thế sắt trong đường sắt, đồng thời khả năng chống ăn mòn và chịu ứng suất cơ học đã cho phép thép vươn ra cả lĩnh vực đóng tàu.


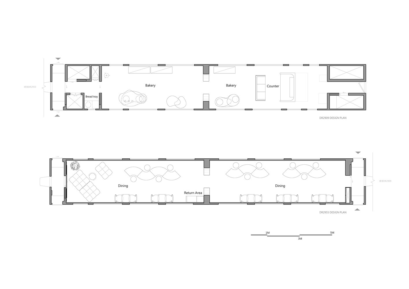
Bản vẽ thể hiện sự phân chia công năng rõ rệt giữa khu vực trưng bày bánh (Bakery) và không gian thưởng thức (Dining) trong lòng hai toa tàu

Toa tàu mang dấu ấn thời gian nằm tĩnh lặng dưới sự bao bọc của cấu trúc mái che hiện đại, đánh dấu sự chuyển mình từ phương tiện giao thông thành không gian trải nghiệm ẩm thực
Trong bối cảnh công nghiệp hiện đại, nhôm và các vật liệu nhẹ khác cũng trở thành thành phần cốt yếu trong ngành hàng không vũ trụ và ô tô. Từ động cơ đến các chi tiết kết cấu, những vật liệu này sở hữu thành phần và phương thức chế tạo đa dạng nhằm tối ưu hóa độ bền, độ dẻo và trọng lượng nhẹ.
Nhưng vật liệu nào sẽ định hình nên nội thất của những không gian này? Các bề mặt hoàn thiện và chất cảm tương tác với nhau ra sao trong thiết kế? Lấy sự chuyển động và những đường cắt làm nguyên tắc chủ đạo, thiết kế nội thất của dự án Horli Baking thực hiện bởi True Thing Design Studio đã giới thiệu hệ thống trưng bày module có thể di chuyển, xoay và biến đổi, chúng tạo nên cảm giác về sự uyển chuyển và năng động. Những hình khối hữu cơ, các cạnh bất quy tắc cùng tông màu sáng gợi nhắc về dòng chảy thời gian, cho phép quá khứ và hiện tại cùng chung sống hài hòa trong bối cảnh lịch sử của công trình.
Đa Kỹ Thuật: Tái Định Nghĩa Nhu Cầu Và Tích Hợp Công Nghệ Xây Dựng
Từ mạng lưới cao tốc nhiều làn đến các tuyến đường thủy và hàng không, ngành giao thông vận tải đã thử nghiệm vô số kỹ thuật xây dựng nhằm thích ứng với điều kiện môi trường và cảnh quan nơi chúng đi qua. Ngày nay, các nhà ga, trung tâm trung chuyển đa phương thức hay bãi đỗ xe... đều được thiết kế với trọng tâm kết hợp giữa tiêu chuẩn kỹ thuật, sự tiện nghi và tính bền vững.

Công trường dự án Nhà để xe Wendlingen là một minh chứng cho xu hướng 'xanh hóa' hạ tầng giao thông
Trong khi đó, các phương tiện vận tải hiện đại dựa vào gỗ, composite, sợi tổng hợp và kim loại đa dạng. Mỗi vật liệu đòi hỏi quy trình xử lý riêng biệt như đùn, rèn, đúc hay các phương pháp xử lý nhiệt và cơ học. Điển hình là JC Architecture đã tái hình dung khái niệm du lịch đường sắt qua dự án The Moving Kitchen – nhà hàng đường sắt đầu tiên tại Đài Loan. Với mục tiêu kết nối ngôn ngữ thiết kế và bản sắc văn hóa, Cục Đường sắt Đài Loan đã cho phép tái sử dụng các toa tàu 70 năm tuổi, trao cho những toa xe lịch sử này một sức sống mới thông qua việc điều chỉnh công năng thích ứng. Quá trình này đặt ra nhiều thách thức kỹ thuật, từ việc tăng gấp ba công suất nguồn điện để phục vụ bếp đến việc thiết kế lại toàn bộ nội thất và hệ thống chiếu sáng.
Diện mạo mới của đầu máy E417 trong dự án The Moving Kitchen. Lớp vỏ đen - cam đặc trưng đánh dấu sự chuyển mình đầy táo bạo của di sản đường sắt 70 năm tuổi dưới bàn tay của JC Architecture
Sơ đồ bố trí mặt bằng 3 toa xe điển hình. Bản vẽ thể hiện giải pháp tổ chức không gian dây chuyền bếp nấu phức tạp (toa dưới cùng) và các cấu hình ghế ngồi linh hoạt, khắc phục hạn chế về diện tích bề ngang của toa tàu
Lời kết
Dù chặng đường hướng tới một hệ thống giao thông an toàn, chi phí hợp lý, tiếp cận thuận lợi và bền vững vẫn còn dài, nhưng các thành phố trên thế giới đang ngày càng hối thúc việc tích hợp các kế hoạch giao thông đô thị bền vững dài hạn, được hỗ trợ bởi nguồn vốn đầu tư hạ tầng và việc thực thi các quy định minh bạch.
Con đường dẫn tới tương lai của ngành giao thông vận tải đòi hỏi chúng ta phải tư duy lại cách mà các công nghệ mới nổi và những đổi mới sáng tạo sẽ định hình các phương thức di chuyển mới. Điều này đặt ra một câu hỏi quan trọng: Làm thế nào để việc 'tái sử dụng thích ứng' (adaptive reuse) có thể song hành cùng hạ tầng thông minh hiện nay nhằm nâng cao hiệu suất cho hệ thống giao thông của ngày mai?
- Giới thiệu 8 đặc điểm của High Performance Team
- "Phá Đảo" Tiếng Anh: Cách Học Từ Vựng Hiệu Quả Qua Những Tựa Game Cốt Truyện Đỉnh Cao
- Giới thiệu khoá học IPv6 Fundamentals đến từ APNIC Academy
- Java Spring Boot: Hành Trình Từ Một Framework Đến Nền Tảng Phát Triển Ứng Dụng Doanh Nghiệp Hàng Đầu Thế Giới
- [THÔNG BÁO] – Lịch bảo vệ Capstone 1&2 (chỉnh thức) và Một số lưu ý quan trọng